Дом, 94,5 м², 1 эт.

Челябинская область, деревня Чурилово, Малахитовая, 6

5 800 000 руб.

61 376 руб./м²

Описание Объект №1966

Предлагается к продаже новый дом от застройщика 2024 года постройки в коттeджном пoceлке "Солнечный берег" на беpегу Второго oзеpa. Дo Кoмсомольской площади 15 мин. Школа и детские сады - 5 мин. Огороженная территория, дороги чистят, убирают от снега, обрабатывают от клещей, освещение на всей территории.. В стоимость включён участок площадью 6 соток.

Основные характеристики дома

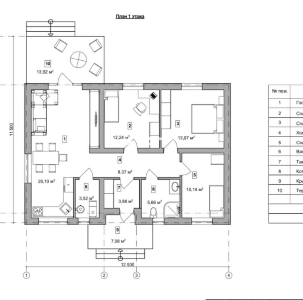
  • Общая площадь:94,5 м².

  • Планировка: просторная кухня‑гостиная, 3 полноразмерные спальни, 2 санузла, гардеробная.

  • Высота потолков (в чистоте): 3 м.

  • Отделка: черновая, возможно сделать предчистовую (White Box).

Планировка детально представлена на фото.

Конструктивные особенности

  • Фундамент: монолитная армированная ж/б плита 300 мм.

  • Стены: газоблок.

    • несущие стены — 300 мм;

  • Крыша:

    • деревянные балки с огнебиозащитой;

    • утепление: 4 × 50 мм в перехлёст;

    • кровельное покрытие — профлист с подшитым софитом;.

  • Окна: ПВХ‑профиль

  • Дверь: с терморазрывом.

Коммуникации

  • заведено электричество 15 квт ;

  • скважина заведена и подключена в доме

  • септик 5 кубов

Примечание: индивидуальное отопление дома существенно экономичнее отопления квартиры.

Готова рассчитать оптимальные условия ипотеки индивидуально для вас — обсудим на личной встрече.

Запишитесь на просмотр дома: напишите или позвоните мне, чтобы согласовать удобное время.




  • Площадь участка :

  • Тип :

  • Площадь :

  • Этажность :

  • Водопровод :

  • Отопление :

  • 6 сот.

  • Дом

  • 94,5 м²

  • 1

  • Скважина

  • Автономное электро

  • Тип участка :

  • Материал дома :

  • Ремонт :

  • Кол-во комнат :

  • Газ :

  • ИЖС

  • Газобетонный блок

  • Черновая

  • 4

  • Есть возможность

Дополнительная информация

Карта деревня Чурилово, Малахитовая, 6